一、捞毛机(机械格栅)用途:
捞毛机(机械格栅),广泛应用于城市污水处理厂、自来水厂、泵站、电厂进水口,自动拦截并清除水中的漂浮物,保证下道工序的正常运行;也可用作纺织、印染、屠宰、制革、造纸、制糖、酿酒、食品加工中的固液分离。
二、型号意义:

三、主要特点:
捞毛机(机械格栅)结构紧凑、电气控制简单,便于实现自动化;耐蚀性优、能耗小、噪音低;除污动作连续、排污干净、分离效率高。
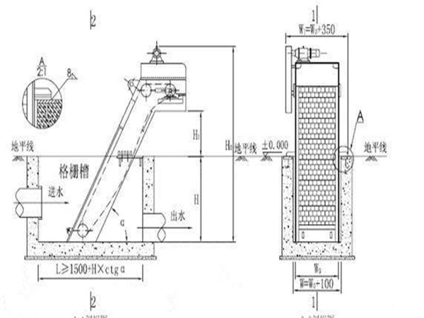
四、工作原理:
捞毛机(机械格栅)是由ABS工程塑料、尼龙或不锈钢制成的耙齿,按一定的排列次序装在耙齿轴上形成封闭式耙齿链,其下部装在进水渠水中。当传动系统带动链轮作匀速定向旋转时,整个耙齿链便自上而下运动,并携带固体杂物从液体中分离出来,流体通过耙齿间隙流出去,整个工作状态连续进行。

由于耙齿的结构形状,使耙齿链携带杂物到达上端反向运动时,前后耙间产生相对自清运动,促使杂物依靠重力脱落,同时设备后面可设置一对胶板刷,以保证每排耙齿运动此位置时都能得到好的刷净。

156-5028-2386
主营产品:一体化51漫画黄 一体化51漫画APP苹果版
销售热线:156-5028-2386
售后服务:133-7108-1766
公司传真:0536-2201118
地址:潍坊市坊子区九龙街道上房村村西
